Eckdaten
- Art Doppelhaushälfte
- Lage 18519 Sundhagen
- Kaufpreis 315.000,00 €
- Wohnfläche ca. 119 m²
- Grundstück ca. 314 m²
- Zimmer 4
- Baujahr 2001
- Etagenzahl 3
- Alt-/Neubau Neubau
- Heizungsart Gas-Heizung
- Einbauküche ja
- Gäste-WC ja
- Stellplatztyp Carport
- Stellplatzanzahl 2
- Vermietet nein
- Bezugstermin sofort
- Bodenbelag Parkett Laminat Fliesen
- Ausstattung des Bades Fenster Dusche
- Zustand Gepflegt
- Immobilien-ID VK-DHH03
- Provision 2,975 inkl. MwSt.
Immobilie
Diese charmante Doppelhaushälfte befindet sich in wunderschöner, ruhiger Lage von Brandshagen und überzeugt durch ihr großzügiges Platzangebot sowie ein idyllisches Wohnumfeld. Direkt hinter dem Haus eröffnet sich ein freier Blick auf ein angrenzendes Feld – ideal für alle, die naturnah wohnen und dennoch gut angebunden sein möchten.
Das Grundstück verfügt über einen sonnigen Hofbereich, einen Vorgarten sowie einen Schuppen mit praktischem Stauraum. Ein Carport bietet Platz für ein Fahrzeug, davor stehen zusätzliche Stellflächen für mehrere Autos zur Verfügung. Der Hauseingang befindet sich seitlich am Gebäude.
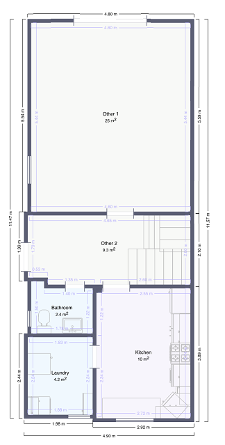
Im Erdgeschoss befinden sich eine stilvolle Küche mit Einbauküche und angrenzendem Hauswirtschaftsraum (inkl. Heizungsanlage), ein Gäste-WC sowie ein helles Wohnzimmer mit direktem Zugang zur Terrasse und in den Garten.
Im Obergeschoss liegen zwei großzügige, lichtdurchflutete Schlafzimmer mit Gaubenfenstern sowie ein Vollbad mit Dusche, Badewanne, WC und Fenster. Das ausgebaute Dachgeschoss bietet zusätzlichen Wohnraum und wird derzeit als drittes Schlafzimmer genutzt.
Diese Doppelhaushälfte vereint naturnahes Wohnen, eine durchdachte Raumaufteilung und ausreichend Platz für die ganze Familie – ein Zuhause zum Wohlfühlen in ruhiger Umgebung.
Lage
Brandshagen ist eine ruhige und familienfreundliche Gemeinde unweit der Hansestadt Stralsund. Die ländlich geprägte Umgebung bietet viel Natur, Felder und eine hohe Lebensqualität, während Einkaufsmöglichkeiten, Schulen, Ärzte sowie weitere Einrichtungen des täglichen Bedarfs in wenigen Minuten erreichbar sind.
Durch die gute Anbindung an die Bundesstraße B96 gelangen Sie schnell nach Stralsund sowie in Richtung der Insel Rügen. Auch die Ostseeküste mit ihren Stränden ist in kurzer Zeit erreichbar und bietet zahlreiche Freizeit- und Erholungsmöglichkeiten.
Die Lage verbindet somit ruhiges, naturnahes Wohnen mit einer guten infrastrukturellen Anbindung.
Bitte Regler „OSM nutzen“ um die Karte zu aktivieren und zum Starten der Route, die Adresse in der Beschreibung anklicken. (Eckdaten – Weiterleitung zu GoogleMaps)
Ausstattung
Ausstattung (kurz & übersichtlich)
– Doppelhaushälfte in ruhiger, naturnaher Lage
– Sonniger Hofbereich mit Vorgarten
– Terrasse mit Zugang zum Garten
– Blick auf angrenzendes Feld hinter dem Haus
– Carport für 1 PKW + zusätzliche Stellplätze vor dem Haus
– Schuppen im Hof für zusätzlichen Stauraum
– Seitlicher Hauseingang
Innenausstattung:
– Stilvolle Einbauküche
– Hauswirtschaftsraum mit Heizungsanlage
– Gäste-WC im Erdgeschoss
– Helles Wohnzimmer mit Terrassenzugang
– Tageslichtbad mit Dusche, Badewanne und WC
– Zwei großzügige Schlafzimmer im Obergeschoss mit Gaubenfenstern
– Ausgebautes Dachgeschoss mit weiterem Schlafzimmer
Sonstiges
Alle in diesem Angebot enthaltenen Angaben, Abmessungen und Preisangaben, beruhen auf Angaben des Eigentümers oder eines Dritten. Kawohls Hausverwaltung & Immobilien übernimmt für die Vollständigkeit, Richtigkeit und Aktualität keine Gewähr. Das Angebot ist freibleibend & unverbindlich.
Die Maklerprovision beträgt insgesamt 5,00 % zzgl. gesetzlicher MwSt. bezogen auf den beurkundeten Kaufpreis.
Die Provision wird zwischen Käufer und Verkäufer hälftig geteilt.
Somit beträgt die vom Käufer sowie vom Verkäufer jeweils zu zahlende Provision 2,50 % zzgl. gesetzlicher MwSt., entsprechend 2,975 % inkl. MwSt.
Die Provision ist mit Abschluss des notariellen Kaufvertrags verdient und fällig.
Energieausweisangaben
- Enerigeausweistyp Bedarfsausweis
- Energiekennwert 130 KWh(m²*a)
- Energieeffizienzklasse D
- Energieausweis erstellt am 12.01.2022
- Energieausweis gültig bis 11.01.2032
- Heizungsart Gas-Heizung
- Befeuerung / Energieträger Erdgas schwer
Herzlichen Dank für Ihre Anfrage.
Wir werden diese so schnell wie möglich bearbeiten.
